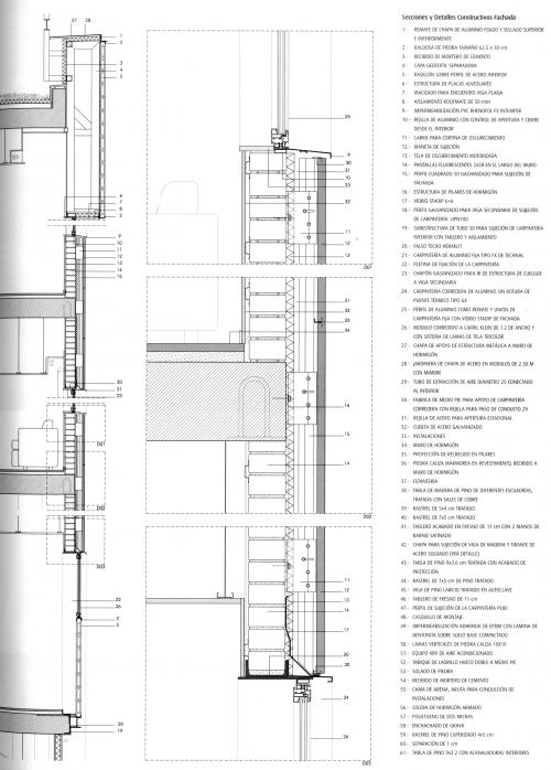
Horizontal strips at Dexeus facade (035)
The new building for the Dexeus Institute in Barcelona is one of the cases in which the openings completely divide the façade into horizontal strips. Consequently, the façade is not mechanically interrupted by the main structure but by the openings. On each floor, the parapet made of reinforced brickwork is supported on the slab and stabilized against horizontal loads fixed to the pillars, while the wall above the window hangs inserted into a steel structure from its upper slab. The horizontal strip of openings needs to allow for differential movements of each part of the façade.
Hospital Universitari Dexeus
Architect:
Location:
C/ Sabino Arana, 5-19
08028 Barcelona Barcelona
SpainYear of construction:
2001
Solution:
Weight of the entire facade:
Period:
Finishing material:
Supporting element:
Companies:
Photographer:
Ph2-3: Aleix Bagué
Ph1, Ph4-6: Cristina Pardal
Ph7: Oriol Roig







